Unione dei Lotti
 

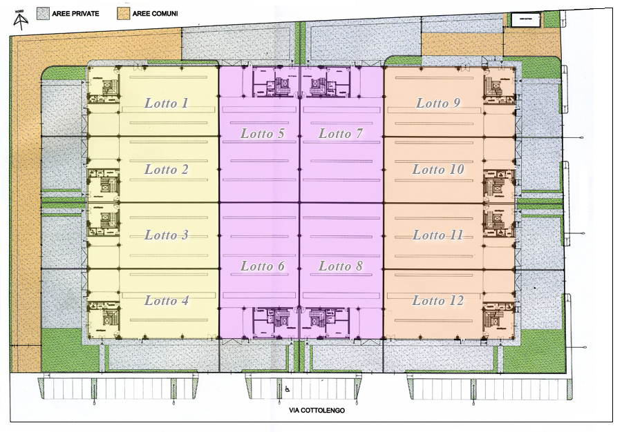
La struttura è stata progettualmente suddivisa in 12 lotti indipendenti  ed autonomi, di superficie variabile con varie possibilità di abbinamento / accorpamento.

Ogni lotto dispone di aree esterne private, dalle quali si accede verso l’interno degli stessi sia pedonalmente che con i mezzi di trasporto merci, attraverso ingressi indipendenti ed individuali.
I lotti angolari sulla fronte sud  est  e nord beneficiano di uscite supplementari, oltre a quelle di normale servizio di cui ogni lotto è dotato, vista la doppia accessibilità dall’esterno.

Ogni lotto è costituito al piano terra da un locale produttivo open space, totalmente libero da pilastrature con la possibilità di realizzare all’interno, dei locali di servizio in disponibilità del personale, nonché un locale ufficio pertinenziale alla produzione.

Ad ogni singola unità si accede tramite una Hall all’interno della quale potrà essere attrezzata una reception   e con una scala aperta attigua al vano ascensore, si potrà accedere ai piani superiori primo e secondo.
Al primo piano può essere attrezzato un ufficio padronale privato, con annessi servizi privati, eventualmente suddivisibile su esigenza dell’utenza, anche in relazione alle superfici consentite dalla diversa tipologia dei lotti.

Al secondo piano è stato ricavato un ampio locale a pianta libera oltre ai servizi in uso al personale; tale locale può essere trasformato in locali indipendenti con destinazione diversa, ai quali si potrebbe accedere  attraverso un corridoio disimpegno, il tutto attuabile con l’impiego di pareti vetrate mobili, che l’utente potrà attrezzare a Suo piacimento, a sua cura e spese, nel rispetto delle superfici  aeroilluminanti e dei relativi parametri tecnici.

Dalla hall del secondo piano è prevista la facoltà di accedere sul terrazzo piano di copertura con una scala di servizio a scomparsa, in quanto la sua totale superficie potrà essere interamente usufruibile essendo predisposta per l’installazione di eventuali impianti particolari di diversa natura, visti i considerevoli carichi previsti in progetto.

Sia gli spazi produttivi che gli uffici, dispongono di superfici aeroilluminanti ampie e gradevoli, tendenti ad un miglior conforto per chi opera e lavora in tali ambienti.

Ogni piano di uffici è dotato di un locale servizio per il personale ed è preposto alla suddivisione dei suoi spazi con soluzioni personalizzate in funzione delle rispettive necessità dell’utenza.

I lotti hanno una dimensione variabile media complessiva al lordo delle rispettive proprietà, indicativamente di circa mq.900 e mq. 1.100, comprendenti in tali superfici le aree esterne a cortile, le hall, i vani scala, gli uffici, i servizi, le aree piane in copertura .

Ogni lotto produttivo è indipendente ed in copertura si presta alla costruzione di impianti fotovoltaici o solari, i cui elementi possono essere posizionati sugli sched situati sul fronte sud, costituendo così un unico insieme con la stessa struttura prefabbricata.

I lotti angolari e quelli centrali prospicienti le due vie pubbliche , sono dotati di facciate continue a pieno campo, in corrispondenza dei vari accessi pedonali, sviluppate sull’altezza interna utile delle hall.

 

 


 



Raffaello SaS
Via Sostegno, 8 Torino - Tel 011.723773 - mail: info@morettocostruzioni.it
Chi siamo - Filosofia - Ubicazione - Lotti- Strutture - Impianti - Personalizzazioni - Collaborazioni finanziaria - Gallery - Contatti

Tutte le componenti tecniche e le immagini contenute all'interno hanno scopo esclusivamente illustrativo e non sono contrattualmente impegnative